Freehold - Tucked into natural . For Sale -

This property has been viewed 688 times.
Download PDF

CD$ 795,000.00

Description

MLS ID: 420422 - Tucked into natural beauty, Lahala Treehouse Cottage is a sanctuary waiting to be discovered.  Standing Seam Roof, built on structural strong pillars.  Full of opportunities for rental income, or growing family.   Solidly built, stable and secure while keeping all its charm.
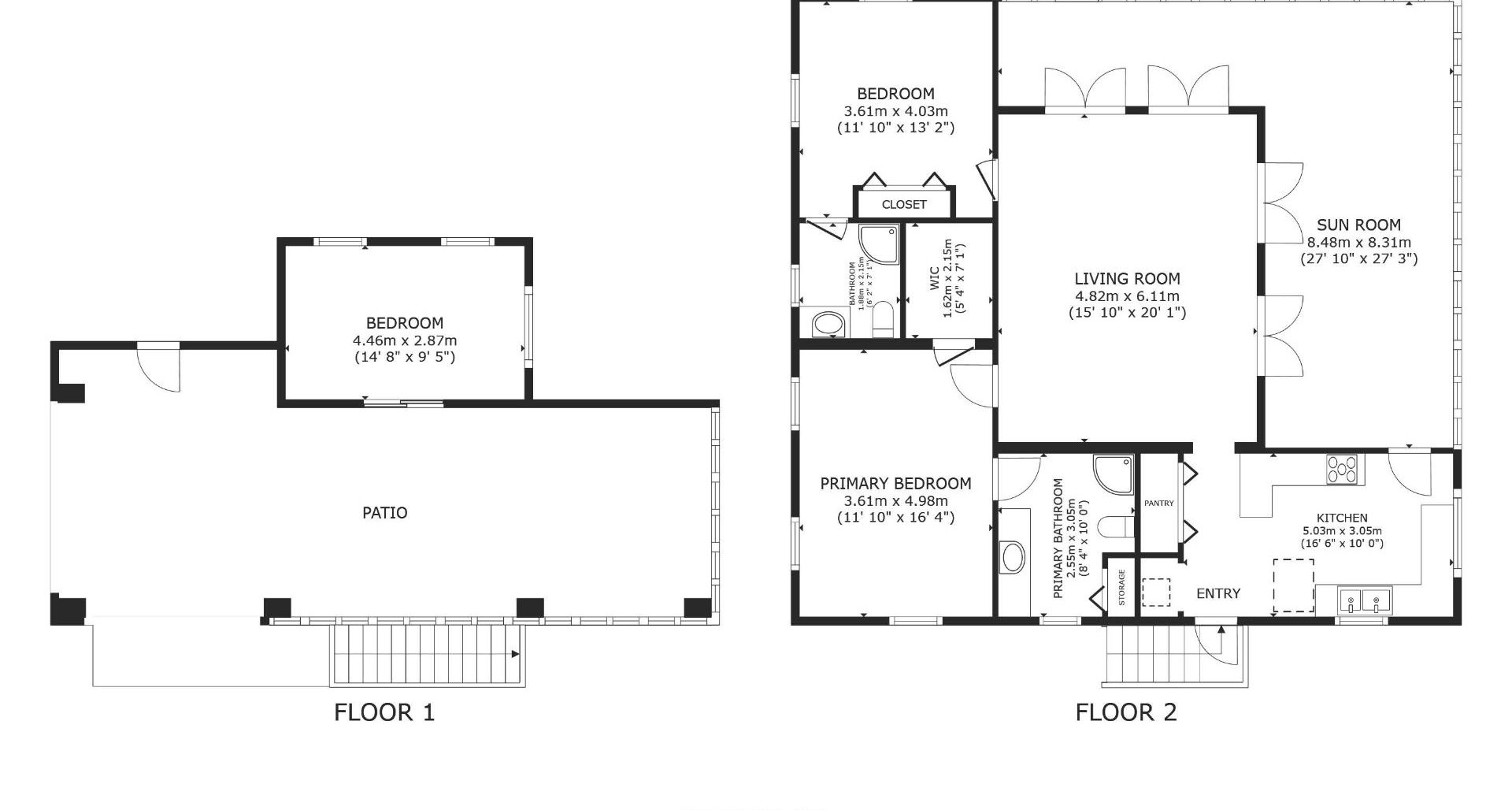
It’s the kind of place where time together comes easily—whether you’re relaxing inside, lounging on the deck to chat and play board games, or retreating to the outdoor cooling deck for evening conversations and open-air cooking. Perfect for lazy afternoons and starlit nights.   As you explore this unique structure, you’ll find two bedrooms with ensuite bathrooms, plus a third bedroom with its own private entrance that can double as an office, games room, or den for added privacy.
Caskwell Drive is a peaceful, family-friendly neighborhood, and this fertile lot includes a shade house ready for growing your own bounty. A canopy of mature trees surrounds the home, offering fragrant Lang Lang, mangoes, breadfruit, and generous shade throughout the day.  You’re just minutes from beautiful Spotts Beach—ideal for snorkeling and turtle watching—and close to Countryside Shopping Centre for convenient shopping and dining.  Easy access to main roads for convenient drives into George Town.
The property sits 6' above sea level.  This is an elevated Frame home on 9' pilings.
 

listing details
  • Listing ID: 000031212082
  • Property type: House/Villa
  • Contract type: For Sale
  • Price: CD$ 795,000.00
  • Bedrooms: 3
  • Stories/Floor: 2
  • Garage capacity: 1
  • Year built: 1997
  • Construction size: 0.00 Sq. Ft. - 0.00 Sq Mt.
  • Lot size: 2,200.00 Sq. Ft. - 204.39 Sq Mt.
Features
  • Furnished
  • Pre-owned
  • Air conditioning
  • View
Map
Properties for sale in Savannah